Phone: 1 (800) 200-5522
Signed in as:
filler@godaddy.com

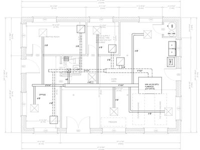
JSR Engineering Inc. delivers complete mechanical design solutions—including HVAC and plumbing—for homes, offices, retail spaces, restaurants, clinics, and pharmacies across Ontario. We provide detailed, permit-ready mechanical plans for new projects, renovations, or upgrades.
For Homeowners:
For Small Commercial & Business Projects:
What You Get:
Contact JSR Engineering Inc. for reliable HVAC and plumbing design. We make your project painless—from concept to ready-for-construction. Quick quotes, clear process, local expertise.
Ontario mechanical design HVAC design Ontario Plumbing design Ontario Mechanical engineering services Residential HVAC design Ontario Commercial HVAC design Ontario Ductwork design Ontario Hydronic heating design Forced air heating plans Ventilation design Ontario Heating and cooling load calculations Heat loss heat gain Ontario Energy efficient HVAC Ontario Furnace replacement plans Ontario Air conditioning design Ontario Split system HVAC design Packaged rooftop unit Ontario Zoning HVAC systems Ontario Bathroom plumbing plans Ontario Kitchen plumbing layout Ontario Water supply plumbing design Drainage system plans Ontario Code-compliant plumbing drawing Permit-ready mechanical drawings Building permit HVAC plans Plumbing permit drawings Ontario Small commercial HVAC design Retail HVAC system Ontario Restaurant kitchen exhaust Ontario Office ventilation design Clinic mechanical design Ontario Pharmacy HVAC plans Accessible washroom plumbing Hot water recirculation plans Grease interceptor drawings Ontario Backflow prevention design Storm water drain Ontario Fire protection plumbing Ontario Mechanical room layout Mechanical system upgrade Ontario Radiant floor heating plans HRV/ERV system design Ontario Boiler plant design Domestic water piping Ontario Gas piping design Ontario HVAC calculations Ontario Energy recovery ventilation Ontario Humidification/dehumidification design Chilled water system Ontario On-demand water heater plans Water leak detection system Water meter sizing/plans Cross connection survey Ontario HVAC for home addition Mechanical retrofit Ontario Existing system upgrade plan Building code mechanical compliance Permit drawings mechanical Mechanical engineer stamped plans Post-construction mechanical verification Duct sizing calculation Ontario Insulation requirements HVAC Residential plumbing plans Multifamily HVAC system design Tenant fit-out HVAC Tenant fit-out plumbing Retail plumbing design Restaurant bar plumbing Ontario Commercial kitchen HVAC Ontario Hot water heater upgrade Mechanical consulting Ontario Heating system design Ontario Mechanical system feasibility Condo mechanical design Apartment HVAC plan School HVAC design Ontario Daycare plumbing design Fitness center HVAC design Salon/small spa plumbing Laundry room plumbing plans Low-rise HVAC Ontario High-rise HVAC Ontario New construction mechanical plans Renovation mechanical plans Addition mechanical permit Legal basement HVAC Legal basement plumbing permit BCIN mechanical plans Ontario OBC compliance mechanical Mississauga HVAC engineer Toronto plumbing permit Hamilton mechanical plans Ottawa HVAC design Barrie mechanical engineer Durham Region HVAC York Region plumbing Milton mechanical design Markham HVAC plans Brampton permit mechanical Etobicoke plumbing design Scarborough HVAC upgrade Guelph mechanical drawings Waterloo HVAC engineer Ajax HVAC permit plans
We use cookies to analyze website traffic and optimize your website experience. By accepting our use of cookies, your data will be aggregated with all other user data.